BZ41H夾套保溫閘閥主要用于石油、化工、冶金、制藥等各類系統中,由于增加了夾套,此種閥門的連接法蘭尺寸要比同一規格普通閘閥的連接法蘭大一到兩個規格,但結構長度與同規格的閥門相同,夾套中可自由地流過蒸汽或其它熱的保溫介質,確保粘稠介質可順暢地流過閥門。該閥門的夾套焊裝于閥門的兩法蘭之間,閥門的側面、底部設置有夾套的連接口,夾套中可自由地流過蒸汽或其它熱的保溫介質,確保粘稠介質可順暢地流過閥門。
產品名稱: | 夾套保溫閘閥 | 產品型號: | BZ41H |
公稱通徑: | DN40~DN300 | 結構形式: | 閘板式 |
公稱壓力: | 1.6Mpa~6.4Mpa/150LB-300LB-600LB | 連接方式: | 法蘭 |
適用溫度: | -20ºC~+150ºC~425ºC~550ºC | 驅動方式: | 手動、傘齒輪、電動、氣動、液動 |
閥體材質: | 鍛鋼、鑄鋼、不銹鋼 | 制造標準: | 國標GB、德國DIN、美國API、ANSI |
適用介質: | 水、油、蒸汽、導熱油、濾清、易結晶物 | 生產廠家: | 浙江嵐勝閥門有限公司 |
設計制造 | 結構長度 | 連接法蘭 | 壓力溫度等級 | 試驗與檢驗 |
GB12234 -89 | GB12221-89 | ANSI B16.5 | GB9131 | JB/T 9092 |
1、夾套焊裝于閥門的兩法蘭之間,閥門的側面、底部設置有夾套的連接口。
2、連接法蘭尺寸比同一規格普通閥門的連接法蘭大一到兩個規格,結構長度與同規格的普通閥門相同。
3、夾套中可自由地流過蒸汽或其它熱的保溫介質,確保粘稠介質可順暢地流過閥門。
型號 | 公稱壓力 | 試驗壓力(MPa) | 工作溫度℃ | 適用介質 | ||
強度(水)(MPa) | 密封(水)(MPa) | 低壓密封(空氣)(MPa) | ||||
BZ41H-16C | 1.6 | 2.4 | 1.8 | 0.6 | ≤425 | 酸、堿、濾清類 |
BZ41H-25C | 2.5 | 3.8 | 2.8 | 0.6 | ≤550 | 酸、堿、濾清類 |
BZ41H-40C | 4.0 | 6.0 | 4.4 | 0.6 | ≤450 | 酸、堿、濾清類 |
BZ41H-64C | 6.4 | 9.6 | 7.0 | 0.6 | ≤300 | 酸、堿、濾清類 |
零件名稱 | ZG1Cr18Ni9Ti系列 | ZG00Cr18Ni10系列 | ZG1Cr18Ni12Mo2Ti系列 | ZG00Cr17Ni14Mo2系列 | WCB系列 |
閥體/閥蓋 | ZG1Cr18Ni9Ti | ZG00Cr18Ni10 | ZG1Cr18Ni12Mo2Ti | ZG00Cr17Ni14Mo2 | WCB |
閘板 | ZG1Cr18NI9Ti | ZG00Cr18Ni10 | ZG1Cr18Ni12Mo2Ti | ZG00Cr17Ni14Mo2 | 1Cr13 |
閥桿 | 1Cr18Ni9Ti | ooCr18Ni10 | 1Cr18Ni12Mo2Ti | ooCr17Ni14Mo2 | 1Cr13 |
填料 | 石墨+304 | 石墨+304 | 石墨+304 | 石墨+304 | 石墨Graphite |
墊片 | 石墨+304 | 石墨+304 | 石墨+304 | 石墨+304 | 石墨+304 |
壓蓋 | ZG1Cr181Ni10 | ZG00Cr18Ni10 | ZG1Cr18Ni12Mo2Ti | ZG00Cr17Ni14Mo2 | WCB |
填料壓環 | 1Cr18Ni9Ti | 00Cr18Ni10 | 1Cr18Mi12Mo2Ti | 00Cr17Ni14Mo2 | 1Cr13 |
螺栓 | 1Cr171Ni2 | 1Cr171Ni2 | 1Cr171Ni2 | 1Cr171Ni2 | 35CrMoA |
螺母 | 1Cr18Ni9Ti | 1Cr18Ni9Ti | 1Cr18Ni9Ti | 1Cr18Ni9Ti | 45 |

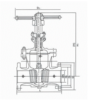
型號 | 壓力 | 公稱通徑 | 尺寸(mm) | |||||||
L | D | D1 | D2 | b | z-d | H | D0 | |||
BZ41H-16C | 1.6 | 40 | 200 | 160 | 125 | 100 | 18-3 | 4-18 | 310 | 200 |
50 | 250 | 180 | 145 | 120 | 18-3 | 4-18 | 358 | 240 | ||
65 | 265 | 195 | 160 | 135 | 20-3 | 8-18 | 373 | 240 | ||
80 | 280 | 215 | 180 | 155 | 20-3 | 8-18 | 435 | 280 | ||
100 | 300 | 245 | 210 | 185 | 22-3 | 8-18 | 500 | 300 | ||
125 | 325 | 280 | 240 | 210 | 24-3 | 8-23 | 614 | 320 | ||
150 | 350 | 335 | 295 | 265 | 26-3 | 12-23 | 674 | 360 | ||
200 | 400 | 405 | 355 | 320 | 30-3 | 12-25 | 818 | 400 | ||
250 | 450 | 460 | 410 | 375 | 30-4 | 12-25 | 969 | 450 | ||
300 | 500 | 520 | 470 | 435 | 34-4 | 16-25 | 1145 | 560 | ||
BZ41H-25C | 2.5 | 40 | 200 | 160 | 125 | 100 | 20-3 | 4-18 | 358 | 240 |
50 | 250 | 180 | 145 | 120 | 22-3 | 8-18 | 373 | 240 | ||
65 | 265 | 195 | 160 | 135 | 22-3 | 8-18 | 435 | 280 | ||
80 | 280 | 230 | 190 | 160 | 24-3 | 8-18 | 500 | 300 | ||
100 | 300 | 270 | 220 | 188 | 28-3 | 8-15 | 614 | 320 | ||
125 | 325 | 300 | 250 | 218 | 30-3 | 8-25 | 674 | 360 | ||
150 | 350 | 360 | 310 | 278 | 34-3 | 12-25 | 818 | 400 | ||
200 | 400 | 425 | 370 | 332 | 36-3 | 12-30 | 969 | 450 | ||
250 | 450 | 485 | 430 | 390 | 40-4 | 12-30 | 1145 | 560 | ||
300 | 500 | 550 | 490 | 448 | 40-4 | 16-34 | 1145 | 640 | ||