Z41F46防腐蝕襯氟閘閥適用在-50℃~150℃的各種濃度的王水、硫酸、鹽酸、氫氟酸和各種有機酸、強酸、強氧化劑,表面均勻包覆一層FEP。閥體通道內表面光滑,流體阻力小,CV值高,流通能力強,扭矩適中,采用四級密封結構并在密封面外配以耐溫抗老化的SI橡膠的彈性襯墊閥座,完全達到介質的零泄漏。
產品名稱: | 防腐蝕襯氟閘閥 | 產品型號: | Z41F46 |
公稱通徑: | DN15~DN300 | 結構形式: | 閘板式 |
公稱壓力: | 1.0Mpa~2.5Mpa | 連接方式: | 法蘭 |
適用溫度: | -20ºC~+150ºC | 驅動方式: | 手動、傘齒輪、電動、氣動 |
閥體材質: | WCB、鑄鋼、碳鋼、不銹鋼 | 制造標準: | 國標GB、德國DIN、美國API、ANSI |
適用介質: | 硫酸、鹽酸、王水、氫氟酸、強腐蝕液體 | 生產廠家: | 浙江嵐勝閥門有限公司 |
1、閥體有扁體和圓體兩種形狀:GB閥門采用圓體,ANSI磅級閥門DN≤300Lb采用扁體,DN≥400Lb采用圓體,閥體、閥蓋的內腔和閘板、閥桿外表面等直接與介質接觸的部件,全部名襯FEP(F46)等氟塑料;
2、密封副為FPF(F46)/ FEP(F46)或其它材料組合,摩擦系數小,啟閉力矩低;
3、填料采用PTFE(F4)標準填料,密封性能好,維修更換方便;
4、帶有彈性的閘板,可補償閘板密封面與閥座密封面之間楔角偏差,吻合度好,密封效果理想;
5、介質可從兩側任意方向通過閘閥,適用于介質方向可能改變的管路上作用啟閉裝置。
設計標準 | GB12234 |
結構長度 | GB12221 |
法蘭標準 | JB/T79-94 |
GB9113.1-26 | |
檢驗試驗 | GB/T13927 |
驅動方式 | 手動、電動、氣動 |
零件名稱 | 灰鑄鐵 | 鑄鋼 | 不銹耐酸鑄鋼 | 超低碳不銹耐酸鑄閥 | ||
Z | C | P | R | PL | RL | |
閥體端蓋閘板 | HT250 | WCB | CF8 | CF8M | CF3 | CF3M |
閥桿 | 1Cr13 | 2Cr13 | 1Cr18Ni9 | 1Cr18Ni12Mo2Ti | 00Cr18Ni10 | 00Cr17Ni14Mo2 |
襯里閥座 | PTFE(F4)、PCTFE(F3)、FEP(F46)、PFA(可溶性4) | |||||
填料壓蓋 | WCB | CF8 | CF8M | CF3 | CF3M | |
填料 | PTFE(F4) | PTFE(F4) | PTFE(F4) | |||
活節螺栓 | 35 | 1Cr17Ni2 | 1Cr17Ni2 | |||
閥桿螺母 | ZCuAI10Fe3 | ZCuAI10Fe3 | ZCuAI10Fe3 | |||
緊固螺母 | 45 | 1Cr17Ni2 | 1Cr18Ni9Ti | |||
螺母 | 0Cr18Ni9 | 0Cr18Ni9 | ||||
手輪 | WCB | WCB | WCB | |||

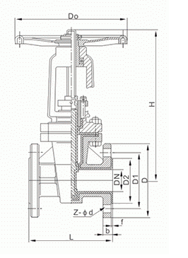
公稱通徑 | 主要外形鏈接尺寸 | |||||||
DN | L | D | D1 | D2 | f | b | z-d | |
DN | inch | PN1.0MPa | ||||||
15 | 1/2 | 130 | 95 | 65 | 45 | 3 | 16 | 4-14 |
20 | 4/4 | 150 | 105 | 75 | 55 | 3 | 18 | 4-14 |
25 | 1 | 160 | 115 | 85 | 65 | 3 | 18 | 4-14 |
32 | 11/4 | 180 | 140 | 100 | 75 | 3 | 18 | 4-18 |
40 | 11/2 | 200 | 150 | 110 | 85 | 3 | 18 | 4-18 |
50 | 2 | 250 | 165 | 125 | 100 | 3 | 18 | 4-18 |
65 | 21/2 | 265 | 185 | 145 | 120 | 3 | 18 | 4-18 |
80 | 3 | 280 | 200 | 160 | 135 | 3 | 20 | 8-18 |
100 | 4 | 300 | 220 | 180 | 155 | 3 | 20 | 8-18 |
125 | 5 | 325 | 250 | 210 | 185 | 4 | 22 | 8-18 |
150 | 6 | 350 | 285 | 240 | 210 | 4 | 22 | 8-22 |
200 | 8 | 400 | 340 | 295 | 265 | 4 | 24 | 8-22 |
250 | 10 | 450 | 395 | 350 | 320 | 4 | 26 | 12-22 |
公稱通徑 | 主要外形鏈接尺寸 | |||||||
DN | L | D | D1 | D2 | f | b | z-d | |
DN | inch | PN1.6MPa | ||||||
15 | 1/2 | 130 | 95 | 65 | 45 | 3 | 16 | 4-14 |
20 | 4/4 | 150 | 105 | 75 | 55 | 3 | 18 | 4-14 |
25 | 1 | 160 | 115 | 85 | 65 | 3 | 18 | 4-14 |
32 | 11/4 | 180 | 140 | 100 | 75 | 3 | 18 | 4-18 |
40 | 11/2 | 200 | 150 | 110 | 85 | 3 | 18 | 4-18 |
50 | 2 | 250 | 165 | 125 | 100 | 3 | 18 | 4-18 |
65 | 21/2 | 265 | 185 | 145 | 120 | 3 | 18 | 4-18 |
80 | 3 | 280 | 200 | 160 | 135 | 3 | 20 | 8-18 |
100 | 4 | 300 | 220 | 180 | 155 | 3 | 20 | 8-18 |
125 | 5 | 325 | 250 | 210 | 185 | 4 | 22 | 8-18 |
150 | 6 | 350 | 285 | 240 | 210 | 4 | 22 | 8-22 |
200 | 8 | 400 | 340 | 295 | 265 | 4 | 24 | 12-22 |
250 | 10 | 450 | 405 | 355 | 320 | 4 | 26 | 12-26 |
公稱通徑 | 主要外形鏈接尺寸 | |||||||
DN | L | D | D1 | D2 | f | b | z-d | |
DN | inch | PN2.5MPa | ||||||
15 | 1/2 | 130 | 95 | 65 | 45 | 3 | 16 | 4-14 |
20 | 4/4 | 150 | 105 | 75 | 55 | 3 | 18 | 4-14 |
25 | 1 | 160 | 115 | 85 | 65 | 3 | 18 | 4-14 |
32 | 11/4 | 180 | 140 | 100 | 75 | 3 | 18 | 4-18 |
40 | 11/2 | 200 | 150 | 110 | 85 | 3 | 18 | 4-18 |
50 | 2 | 250 | 165 | 125 | 100 | 3 | 20 | 4-18 |
65 | 21/2 | 265 | 185 | 145 | 120 | 3 | 22 | 8-18 |
80 | 3 | 280 | 200 | 160 | 135 | 3 | 24 | 8-18 |
100 | 4 | 300 | 235 | 190 | 155 | 3 | 24 | 8-22 |
125 | 5 | 325 | 270 | 220 | 185 | 4 | 26 | 8-26 |
150 | 6 | 350 | 300 | 250 | 210 | 4 | 28 | 8-26 |
200 | 8 | 400 | 360 | 310 | 275 | 4 | 30 | 12-26 |
250 | 10 | 450 | 425 | 370 | 330 | 4 | 32 | 12-30 |