Z43Y、Z63Y、Z83Y、Z23Y油田閘閥一種關閉件為平行閘板的滑動閥。其關閉件可以是單閘板或是其間帶有撐開機構的雙閘板。閘板向閥座的壓緊力是由作用與浮動閘板或浮動閥座的介質壓力來控制。如果是雙閘板平板閘閥,則兩閘板間的撐開機構可以補充這一壓緊力,作為控制介質的啟閉及調節裝置,該產品結構設計合理、選材恰當、測度嚴格、操作輕便,具有較強防腐、耐磨、耐沖蝕性能,是石油工業界一種理想裝備。
產品名稱: | 油田閘閥 | 產品型號: | Z43Y、Z63Y、Z83Y、Z23Y |
公稱通徑: | DN25~DN150 | 結構形式: | 閘板式 |
公稱壓力: | 16.0Mpa~42.0Mpa | 連接方式: | 法蘭、焊接、卡套、外螺紋 |
適用溫度: | -20ºC~+150ºC | 驅動方式: | 手動、傘齒輪、電動、氣動、液動 |
閥體材質: | 鑄鋼、不銹鋼 | 制造標準: | 國標GB、德國DIN、美國API、ANSI |
適用介質: | 水、蒸汽、石油、天然氣、污水 | 生產廠家: | 浙江嵐勝閥門有限公司 |
1.閥座的密封結構應為彈性有預緊力,上、下游密封座同時密封的結構。閥座與密封物間始終為面對面密封。
2.閥座有自清洗功能,并且在閥門開啟或關閉過程中不受氣流直接沖刷。閥座應由有潤滑、不磨損材料制成。
3.閥門執行機構的故障不會影響到閥門的其它部分,維修和更換工作能夠在不拆下閥門的情況下進行。
(1) 軛架套管:鋁青銅軛架套管配置針形止推軸承,最大程度減少操作扭矩。
(2) 閥桿:螺紋長度直到托架;銷釘和點焊;具有穩定性。
(3) 壓力密封:結構簡單,配置分段扣環和鍍銀低碳鋼墊圈,有助于拆卸和實現最好的閥帽密封。
(4) 閥座環:焊接閥座環垂直于流動通道,易于維護。
(5) 執行機構:閥門可以配置電動、液動或氣動執行機構。DN300以下配置標準手動手輪,DN350以上配置斜齒輪操作機構。
(6) 軛架:完全裝配式軛架通過抗震測試,易于維護和安裝執行機構。
(7) 壓蓋:兩件式,自調節壓蓋,避免被彈出。
(8) 整體后座:硬面,使用壽命最長。
(9) 閥瓣:彈簧負載閥瓣能夠自行調節,減少執行機構的扭矩需求。
(10) 整體止動:整體鑄造托架止動裝置,定位組裝的托架閥瓣,使得閥座更加穩定可靠。
設計標準 | JB/T5298、APl6D | |
結構長度 | 法蘭 | GB/T 12221、JB/T 5298 |
焊接 | GB/T 15188.1 | |
連接法蘭 | GB/T9113、JB/T 79 ANSl 16.5a | |
對焊端 | GB/T 12224 | |
試驗和檢驗 | GB/T3927、JB/T 9092 | |
壓 力 等 級 | 16 | 20 | 25 | 32 | 35 | 40 |
工作壓力(Mpa) | ≤16 | ≤20 | ≤25 | ≤32 | ≤35 | ≤40 |
強度試驗(Mpa) | 24 | 30 | 37.5 | 48 | 52.5 | 60 |
密封試驗(Mpa) | 17.6 | 22 | 27.5 | 35.2 | 38.5 | 44 |
介 質 | 水、油、天燃氣 | |||||
溫 度 | -19~120℃ | |||||
抗硫型 | 含H2S、CO2的石油、天然氣等 | |||||

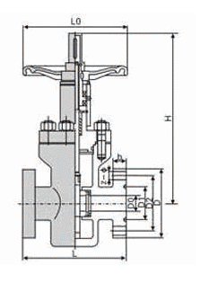
公稱壓力PN | 公稱通徑DN | 主要外形尺寸和連接尺寸 | ||||||||
L | H | D0 | D1 | D2 | D | b | Z-φd | L0 | ||
16MPa | 25 | 210 | 345 | 25 | 50.8 | 101.5 | 150 | 29 | 4-26 | 200 |
32 | 240 | 350 | 29 | 60-32 | 111.0 | 160 | 29 | 4-26 | 220 | |
40 | 260 | 380 | 36 | 68.28 | 124.0 | 180 | 32 | 4-29.5 | 280 | |
50 | 300 | 400 | 45 | 95.25 | 165.0 | 215 | 38.5 | 8-26 | 300 | |
65 | 320 | 440 | 58 | 107.95 | 190.5 | 245 | 41.5 | 8-29.5 | 350 | |
80 | 360 | 500 | 72 | 123.82 | 190.5 | 240 | 38.5 | 8-26 | 360 | |
100 | 450 | 540 | 90 | 149.22 | 235.0 | 290 | 44.5 | 8-32.5 | 400 | |
150 | 560 | 620 | 135 | 211.12 | 317.5 | 380 | 56 | 12-32.5 | 450 | |
25MPa | 25 | 220 | 345 | 25 | 50.8 | 101.5 | 150 | 29 | 4-26 | 200 |
32 | 250 | 350 | 29 | 60-32 | 111.0 | 160 | 29 | 4-26 | 220 | |
40 | 270 | 380 | 36 | 68.28 | 124.0 | 180 | 32 | 4-29.5 | 280 | |
50 | 310 | 400 | 45 | 95.25 | 165.0 | 215 | 38.5 | 8-26 | 300 | |
65 | 340 | 440 | 58 | 107.95 | 190.5 | 245 | 41.5 | 8-29.5 | 350 | |
80 | 380 | 500 | 72 | 136.25 | 203.0 | 265 | 48 | 8-32.5 | 360 | |
100 | 480 | 540 | 90 | 161.92 | 241.5 | 310 | 54 | 8-35.5 | 400 | |
150 | 580 | 620 | 135 | 211.12 | 317.5 | 395 | 83 | 12-39 | 450 | |

公稱壓力PN | 公稱通徑DN | 主要外形尺寸和連接尺寸 | ||||
L | H | D0 | D1 | L0 | ||
16MPa | 160 | 345 | 25 | 42 | 200 | |
32 | 180 | 350 | 29 | 54 | 220 | |
40 | 210 | 380 | 36 | 60 | 280 | |
50 | 230 | 400 | 45 | 73 | 300 | |
65 | 250 | 440 | 58 | 89 | 350 | |
80 | 270 | 500 | 72 | 108 | 360 | |
100 | 320 | 540 | 90 | 133 | 400 | |
150 | 500 | 620 | 135 | 192 | 450 | |
25MPa | 25 | 160 | 345 | 25 | 42 | 200 |
32 | 180 | 350 | 29 | 56 | 220 | |
40 | 210 | 380 | 36 | 64 | 280 | |
50 | 230 | 400 | 45 | 76 | 300 | |
65 | 250 | 440 | 58 | 89 | 350 | |
80 | 270 | 500 | 72 | 114 | 360 | |
100 | 320 | 540 | 90 | 146 | 400 | |
150 | 500 | 620 | 135 | 192 | 450 | |

公稱壓力 | 公稱通徑 | 尺寸(mm) | |||||||
L | L1 | H | D0 | D1 | D2 | b | L0 | ||
16 | 40 | 210 | 370 | 380 | 36 | 88.8 | 120 | 20 | 280 |
50 | 230 | 410 | 400 | 45 | 88.8 | 120 | 20 | 300 | |
65 | 240 | 440 | 440 | 58 | 88.8 | 120 | 20 | 350 | |
80 | 270 | 490 | 500 | 72 | 107.8 | 140 | 20 | 360 | |
25 | 40 | 230 | 390 | 380 | 36 | 88.8 | 120 | 20 | 280 |
50 | 240 | 420 | 400 | 45 | 88.8 | 120 | 20 | 300 | |
65 | 260 | 460 | 440 | 58 | 88.8 | 120 | 20 | 350 | |
80 | 290 | 510 | 500 | 72 | 107.8 | 140 | 20 | 360 | |

公稱通徑 | 尺寸(mm) | 重量 | |||||||
DN | L | L1 | Tr | SR | H | H1 | DO | ||
50 | 47 | 212 | 30 | 120×6 | 40 | 364 | 312 | 440 | 60 |
65 | 57 | 235 | 30 | 130×6 | 40 | 402 | 330 | 480 | 75 |
80 | 70 | 267 | 35 | 150×6 | 60 | 495 | 41 1 | 500 | 90 |
100 | 92 | 330 | 45 | 180×8 | 74 | 543 | 443 | 500 | 110 |