DJ41Y美標低溫截止閥適用于低溫液體貯運設備的管理系統,具有開關靈活、密封可靠的特點,也可用于其他低溫和深冷介質的管理系統。
產品名稱: | 美標低溫截止閥 | 產品型號: | DJ41Y |
公稱通徑: | DN15~DN300 | 結構形式: | 截止式 |
公稱壓力: | 1.6MPa~16.0MPa | 連接方式: | 法蘭、焊接、螺紋 |
適用溫度: | -29ºC~-196ºC | 驅動方式: | 手輪、傘齒輪 |
閥體材質: | LCB碳鋼、LC3不銹鋼 | 制造標準: | 國標GB、德國DIN、美國API、ANSI |
適用介質: | 液化天然氣、液氮、液氨、乙烯、丙烯、甲烷 | 生產廠家: | 浙江嵐勝閥門有限公司 |
1、產品設計制造按ANSIB16.34、E101標準,可與進口設備配備使用。
2、閥門中腔采用壓力自緊式密封結構,內腔壓力越高密封性能越好。
3、閥瓣和閥座的密封面采用司太立(stellite)鈷基硬質合金堆焊而成。
4、閥蓋填料函深度合理,填料加緩蝕劑,密封可靠,開關平穩。
5、閥門具有上密封結構,保證閥門開啟運行時不經閥桿外漏。
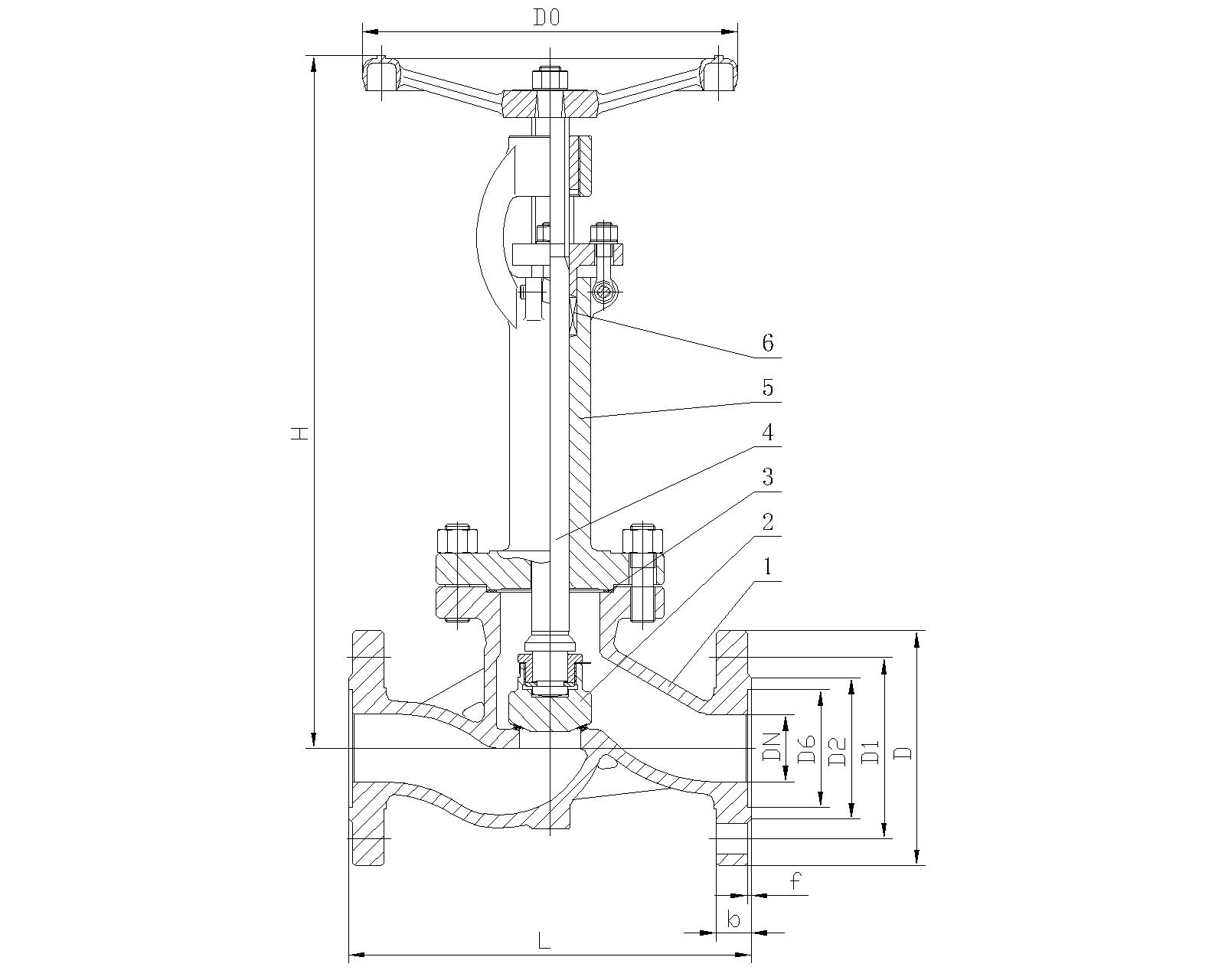
項目 | 結構長度 | 法蘭標準 |
標準 | ANSI B16.10 | ANSI B16.5 |
零件名稱 | 閥體、閥蓋 | 閥桿、閥瓣 | 填料 | 支架 |
材料 | A352-LCB、 | A182-F304 | 聚四氟乙烯 | A216-WCB |
型號 | 公稱壓力 PN | 常溫試驗壓力 | 低溫密封試驗壓力(MPa) | 工作溫度及適用介質 | ||||
殼體 | 密封 | 上密封 | ||||||
DJ44Y-150(Lb) | 150 | 3.0 | 0.6 | 2.2 | 0.6 | -46℃,氨、液氮、丙烷 | -101℃乙烯、而氧化碳 | -196℃甲烷、液化天然氣 |
DJ44Y-300(Lb) | 300 | 7.5 | 0.6 | 5.5 | 0.6 | |||
DJ44Y-600(Lb) | 600 | 15.0 | 0.6 | 11.0 | 0.6 | |||

公稱壓力(Class) | 公稱通徑 NPS | L | H | |||
in | mm | -46℃ | -101℃ | -196℃ | ||
DJ41Y-150Lb | ||||||
150 | 2 | 50 | 203 | 110 | 130 | 170 |
3 | 80 | 241 | 120 | 150 | 190 | |
4 | 100 | 292 | 130 | 160 | 200 | |
5 | 125 | 356 | 130 | 160 | 200 | |
6 | 150 | 406 | 140 | 170 | 220 | |
8 | 200 | 495 | 140 | 170 | 220 | |
DJ41Y-300Lb | ||||||
300 | 2 | 50 | 267 | 414 | 130 | 170 |
3 | 80 | 292 | 466 | 150 | 190 | |
4 | 100 | 318 | 466 | 160 | 200 | |
6 | 150 | 356 | 528 | 170 | 220 | |
8 | 200 | 445 | 678 | 170 | 220 | |
DJ41Y-600Lb | ||||||
600 | 2 | 50 | 292 | 110 | 130 | 170 |
3 | 80 | 356 | 120 | 150 | 190 | |
4 | 100 | 432 | 130 | 160 | 200 | |
5 | 125 | 508 | 130 | 160 | 200 | |
6 | 150 | 559 | 140 | 170 | 220 | |
8 | 200 | 660 | 140 | 170 | 220 | |