Q47F固定球閥是一種高性能閥門,適用于長輸管線和一般工業管線,其強度、安全性、耐惡劣環境性等在設計時進行了特殊考慮,適合于高溫高壓的水、蒸汽、石油、煤炭、纖維、稠性和腐蝕性介質。其中抗硫系列產品適用于含硫化氫介質、雜質多、腐蝕嚴重的天然氣長輸管線。固定球閥與浮動球閥相比,工作時,閥前流體壓力在球體上產生的作用力全部傳遞給軸承,不會使球體向閥座移動,因而閥座不會承受過大的壓力,所以固定式法蘭球閥的轉矩小、閥座變形小,密封性能穩定、使用壽命長,適用于高壓、大口徑場合。先進的彈簧預閥座組件,具有自緊特性,實現上游密封。每閥有兩個閥座,每個方向都能密封,因而安裝沒有流向限制,是雙向。
產品名稱: | 固定式球閥 | 產品型號: | Q47F、Q347F、Q647F、Q947F |
公稱通徑: | DN50~DN1200 | 結構形式: | 球形 |
公稱壓力: | 1.6Mpa~42.0Mpa | 連接方式: | 法蘭 |
適用溫度: | -20~+100℃~+450℃ | 驅動方式: | 手動、蝸輪、氣動、、電動 |
閥體材質: | 鑄鋼、不銹鋼 | 制造標準: | 國標GB、德國DIN、美國API、ANSI |
適用介質: | 水、蒸汽、燃氣、氣體及腐蝕性液體等 | 生產廠家: | 浙江嵐勝閥門有限公司 |
(1)操作省力:球體由上下軸承支撐,減少摩擦,消除了由于進口壓力推動球體與密封座形成的巨大密封負荷而造成過大的扭矩。
(2)密封性能可靠:PTFE單性材料密封圈嵌于不銹鋼閥座內,金屬閥座尾端設有彈簧保證密封圈足夠的預緊力,閥門在使用過程中密封面磨損時,在彈簧作用下閥門繼續保證良好密封性能。
(3)防火結構:為防止由于驟熱或火災的出現,使聚四氟乙烯密封圈燒毀,發生較大泄漏,而助長火勢,在球體與閥座間設置防火密封環,在密封圈燒毀時,在彈簧力作用下,將閥座密封環迅速推向球體上,形成金屬與金屬密封,起到一定程度的密封效果。耐火試驗符合APl6FA和APl607標準要求。
(4)自動泄壓功能:當閥門中腔停滯的介質壓力異常升高超過彈簧的預緊力時,閥座后退脫離球體,達到自動泄壓的效果,卸壓后閥座自動復位。
(5)排泄管路:閥體上下均設置排泄孑L,可檢查閥座是否發生泄漏,在工作中,閥門處于全開或全關時,卸掉中腔壓力,可直接更換填料;可以排放中腔滯留物,減少介質對閥門的污染。輔助密封設置系統(客戶需要請在訂購時說明)
(6)本閥門設計有輔助的閥座緊急密封系統,一旦密封受損或出現緊急十青況而不能密封時,通過輔助密封系統向密封面注射相應的密封劑即可修復密封面,達到緊急密封。當輸送的介質不潔或含有少量顆粒時,為保護密封面,確保達到可靠的密封,還可給這一裝置注射相應的清洗劑或潤滑劑對密封面進行清洗。
(7)廣泛適用于食品、醫藥、石油、化工、天然氣、鋼鐵、環保、造紙等輸送管路介質的切斷或流通。還可給這一裝置注射相應的清洗劑或潤滑劑對密封面進行清洗。
序號 | 零件 | 普通碳 | 不銹鋼系列 | 低溫鋼系列 | 抗硫系列 | |||
GB標準 | NACE標準 | |||||||
1 | 閥 蓋 | A216 WCB | A351 CF8、CF8M、CF3、CF3M | A352 LCB、 | A216 WCB | A351 CF8M | ||
2 | 螺 母 | A194 2H | A194 8 、8M | A194 4 | A194 2HM | A194 2HM | ||
3 | 螺 柱 | A193 B7 | A193 B8、B8M | A320 L7 | A193 B7M | A193 B7M | ||
4 | 墊 片 | 柔性石墨+不銹鋼 | ||||||
5 | O形圈 | 氟橡膠 | ||||||
6 | 彈 簧 | INCONEL X-750 | ||||||
7 | O形圈 | 氟橡膠 | ||||||
8 | O形圈 | 氟橡膠 | ||||||
9 | 擋 圈 | PTFE | ||||||
10 | 防火圈 | 石墨盤根 | ||||||
11 | 閥座支撐圈 | A105+ | A182 F304、F316、F304L、F316L | F182 F6a | A105+ | A182、F316+ENP | ||
12 | 閥 座 | PTFE、RPTFE、高分子聚合物NYLON、MOLON或PEEK | ||||||
13 | 止推墊片 | PTFE、或PTFE+柔性石墨 | ||||||
14 | 鍵 | GB/T699 45、ASTM 1045 | ||||||
15 | 閥桿 | A182 F6a | A182 F304、F316、F304L、F316L | A182 F6a | A182 F304 | A182 F316+ENP | ||
16 | 防靜電裝置 | 不銹鋼組合件 | ||||||
17 | 軸 套 | 304+PTFE | ||||||
18 | 球 體 | A105+ | A182 F304、F316、F304L、F316L | A352 LCB、 | A105+ | A351 CF8M+ENP | ||
19 | 墊 片 | PTFE | ||||||
20 | 軸 套 | 304+PTFE | ||||||
21 | 螺 母 | A194 2H | A194 8 、8M | A194 4 | A194 2HM | A194 2HM | ||
22 | 螺 柱 | A193 B7 | A193 B8、B8M | A320 L7 | A193 B7M | A193 B7M | ||
23 | 底 蓋 | A105+ | A182 F304、F316、F304L、F316L | A182 F6a | A105+ENP/A182 F3164+ENP | |||
24 | 墊 片 | 柔性石墨+不銹鋼 | ||||||
25 | 閥 體 | A216 WCB | A351 CF8、CF8M、CF3、CF3M | A352 LCB、 | A216 WCB | A351 CF8M | ||
26 | 墊 片 | 柔性石墨+不銹鋼 | ||||||
27 | O形圈 | 氟橡膠 | ||||||
28 | 上 蓋 | A105+ | A182 F304、F316、F304L、F316L | A182 F6a | A105+ENP/A182 F3164+ENP | |||
29 | 螺 釘 | A193 B7 | A193 B8、B8M | A320 L7 | A193 B7M | A193 B7M | ||
30 | O形圈 | 氟橡膠 | ||||||
31 | O形圈 | 氟橡膠 | ||||||
32 | 填 料 | 柔性石墨/石墨盤根 | ||||||
33 | 螺 母 | A194 2H | A194 8 、8M | A194 4 | A194 2HM | A194 2HM | ||
34 | 螺 柱 | A193 B7 | A193 B8、B8M | A320 L7 | A193 B7M | A193 B7M | ||
35 | 聯接盤 | A105+ | A182 F304、F316、F304L、F316L | A182 F6a | A105+ENP/A182 F3164+ENP | |||
H 36 | 定位銷 | 不銹鋼 | ||||||
37 | 螺 釘 | A193 B7 | A193 B8、B8M | A320 L7 | A193 B7M | A193 B7M | ||
38 | 蝸輪箱 | 組合件 | ||||||
39 | 注脂閥 | 同殼體材料 | ||||||
40 | 排污閥 | 同殼體材料 | ||||||
41 | 注脂閥 | 同殼體材料 | ||||||
設計依據 | 國標系列 | 美標系列 | |
設計標準 | GB/T12237 | AP16D | ANSI B16.34 |
法蘭連接結構長度 | GB/T12221 | AP16D | ANSI B16.10 |
結構長度(焊接) | GB/T15188.1 | AP16D | ANSI B16.10 |
連接法蘭 | GB/T9113 | ANSI B16.5、B16.47 | |
對焊端 | GB/T12224 | ANSI B16.25 | |
試驗和檢驗 | GB/T9092 | AP16D | AP1598 |
壓力等級 | 試驗壓力(MPa) | ||
公稱壓力(PN) | 磅級(Class) | 殼體試驗 | 密封試驗 |
1.0 | - | 1.5 | 1.1 |
1.6 | - | 2.5 | 1.76 |
2.5 | - | 3.8 | 2.75 |
4.0 | - | 6.0 | 4.4 |
6.4 | - | 9.6 | 7.04 |
10.0 | - | 15.0 | 16.5 |
16.0 | 24.0 | 17.6 | |
25.0 | 37.5 | 27.5 | |
32.0 | 48.0 | 35.2 | |
42.0 | 58.8 | 46.2 | |
- | 150 | 3.0 | 2.2 |
- | 300 | 7.6 | 5.6 |
- | 600 | 15.0 | 11.0 |
800 | 18.2 | 14.3 | |
900 | 22.5 | 16.5 | |
1500 | 35.0 | 27.5 | |
2500 | 63.0 | 46.2 | |
3500 | 84.0 | 61.6 | |
4500 | 114.0 | 83.6 | |
- | 10K | 2.4 | 1.5 |
- | 20K | 5.8 | 4.0 |

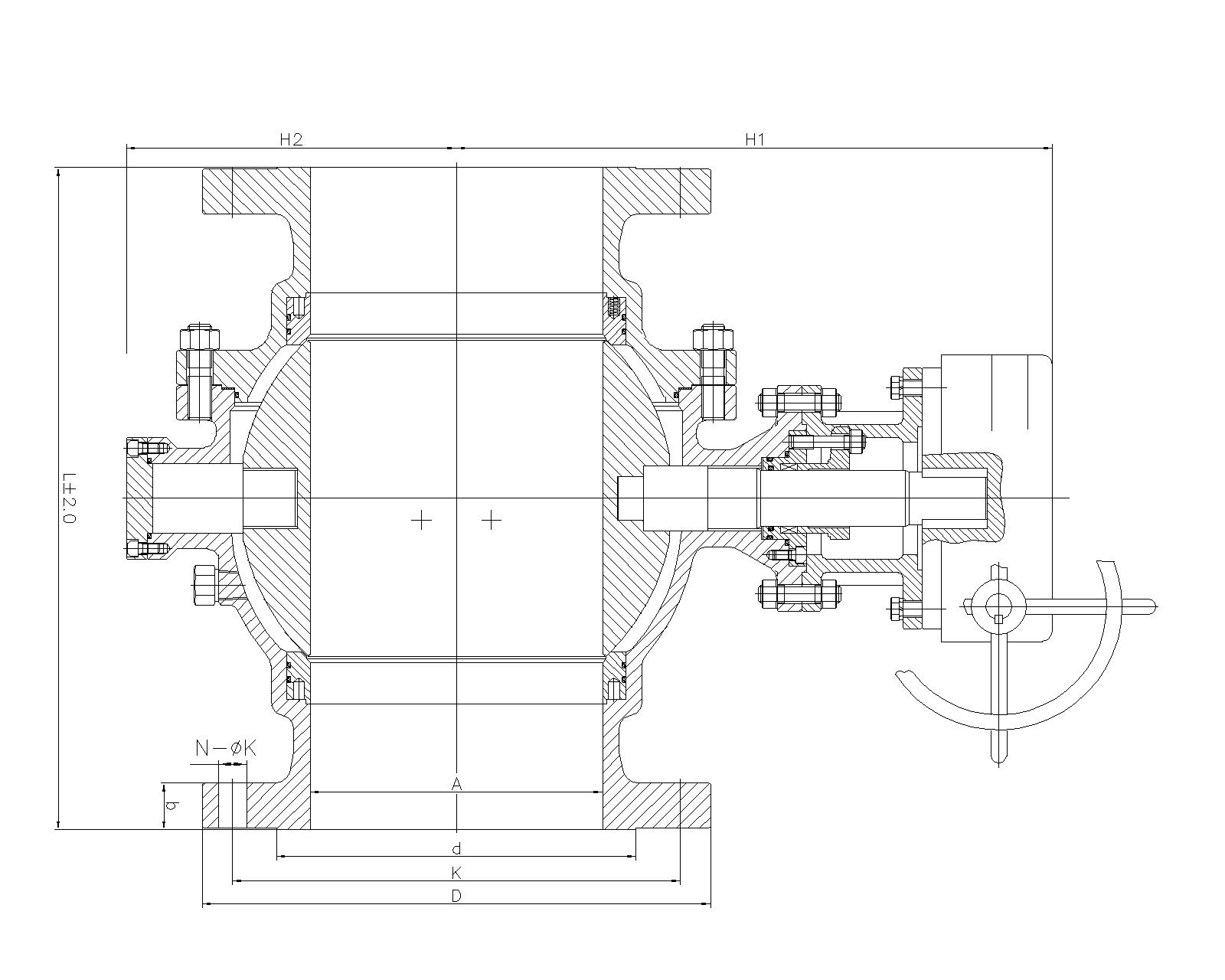
1.6MPa | DN | L | A | D | k | d | b | t | N-φk | H1 | H2 |
Q347Y Q347PPL 16C 16P 16R | 150 | 394 | 150 | 285 | 240 | 212 | 22 | 2 | 8-φ22 | 470 | 540 |
200 | 457 | 200 | 340 | 295 | 268 | 24 | 2 | 12-φ22 | 520 | 580 | |
250 | 533 | 250 | 405 | 355 | 320 | 26 | 2 | 12-φ26 | 610 | 640 | |
300 | 610 | 300 | 460 | 410 | 378 | 28 | 2 | 12-φ26 | 650 | 690 | |
350 | 686 | 337 | 520 | 470 | 428 | 30 | 2 | 16-φ26 | 740 | 785 | |
400 | 762 | 387 | 580 | 525 | 490 | 32 | 2 | 16-φ30 | 795 | 830 | |
450 | 864 | 436 | 640 | 585 | 550 | 40 | 2 | 20-φ30 | 860 | 910 | |
500 | 914 | 489 | 715 | 650 | 610 | 44 | 2 | 20-φ33 | 945 | 990 | |
600 | 1067 | 591 | 840 | 770 | 725 | 54 | 2 | 20-φ36 | 1040 | 1090 | |
700 | 1245 | 686 | 910 | 840 | 795 | 42 | 2 | 24-φ36 | 1150 | 1210 | |
800 | 1372 | 781 | 1025 | 950 | 900 | 42 | 2 | 24-φ39 | 1280 | 1340 | |
900 | 1524 | 876 | 1125 | 1050 | 1000 | 44 | 2 | 28-φ39 | 1430 | 1510 | |
1000 | 1753 | 978 | 1255 | 1170 | 1115 | 46 | 2 | 28-φ42 | 1580 | 1640 | |
1200 | 2032 | 1166 | 1585 | 1390 | 1330 | 52 | 2 | 36-φ48 | 1810 | 1910 |
2.5MPa | DN | L | A | D | k | d | b | t | N-φk | H1 | H2 |
Q347Y Q347PPL 25C 25P 25R | 150 | 403 | 150 | 300 | 250 | 218 | 28 | 2 | 8-φ26 | 470 | 540 |
200 | 502 | 200 | 360 | 310 | 278 | 30 | 2 | 12-φ26 | 520 | 580 | |
250 | 568 | 250 | 425 | 370 | 335 | 32 | 2 | 12-φ30 | 610 | 640 | |
300 | 648 | 300 | 485 | 430 | 395 | 34 | 2 | 16-φ30 | 650 | 690 | |
350 | 762 | 337 | 555 | 490 | 450 | 38 | 2 | 16-φ33 | 740 | 785 | |
400 | 838 | 387 | 620 | 550 | 505 | 40 | 2 | 16-φ36 | 795 | 830 | |
450 | 914 | 436 | 670 | 600 | 555 | 46 | 2 | 20-φ36 | 860 | 910 | |
500 | 991 | 489 | 730 | 660 | 615 | 48 | 2 | 20-φ36 | 945 | 990 | |
600 | 1143 | 591 | 845 | 770 | 720 | 58 | 2 | 20-φ39 | 1040 | 1090 | |
700 | 1346 | 686 | 960 | 875 | 820 | 50 | 2 | 24-φ42 | 1150 | 1210 | |
800 | 1524 | 781 | 1085 | 990 | 930 | 54 | 2 | 24-φ48 | 1280 | 1340 | |
900 | 1727 | 876 | 1185 | 1090 | 1030 | 58 | 2 | 28-φ48 | 1430 | 1510 | |
1000 | 1880 | 978 | 1320 | 1210 | 1140 | 62 | 2 | 32-φ55 | 1580 | 1640 | |
1200 | 2184 | 1166 | 1530 | 1420 | 1350 | 70 | 2 | 36-φ55 | 1810 | 1910 |
4.0MPa | DN | L | A | D | k | d | b | t | n-φk | H1 | H2 |
Q41H Q41PPL 40C 40P 40R | 150 | 403 | 150 | 300 | 250 | 218 | 28 | 2 | 8-926 | 470 | 540 |
200 | 502 | 200 | 375 | 320 | 285 | 34 | 2 | 12-φ30 | 520 | 580 | |
250 | 568 | 250 | 450 | 385 | 345 | 38 | 2 | 12-φ33 | 610 | 640 | |
300 | 648 | 300 | 515 | 450 | 410 | 42 | 2 | 16-φ33 | 650 | 690 | |
350 | 762 | 337 | 580 | 510 | 465 | 46 | 2 | 16-036 | 740 | 785 | |
400 | 838 | 387 | 660 | 585 | 535 | 50 | 2 | 16-φ39 | 795 | 830 | |
450 | 914 | 436 | 685 | 610 | 560 | 57 | 2 | 20-39 | 860 | 910 | |
500 | 991 | 489 | 755 | 670 | 615 | 57 | 2 | 20-φ42 | 945 | 990 | |
600 | 1143 | 591 | 890 | 795 | 735 | 72 | 2 | 20-φ48 | 1040 | 1090 | |
700 | 1136 | 686 | 995 | 900 | 835 | 68 | 2 | 24-φ54 | 1150 | 1210 | |
800 | 1524 | 781 | 1135 | 1030 | 960 | 76 | 2 | 24-φ58 | 1280 | 1340 | |
900 | 1727 | 876 | 1270 | 1168 | 1022 | 105 | 2 | 32-φ54 | 1430 | 1510 | |
1000 | 1880 | 978 | 1238 | 1156 | 1086 | 114 | 2 | 32-φ44 | 1580 | 1640 | |
1200 | 2184 | 1166 | 1467 | 1372 | 1302 | 133 | 2 | 32-φ51 | 1810 | 1910 |