氣動,電動O型切斷球閥采用O型球芯結構,所以也稱O型切斷球閥。電動開關球閥適用于兩位切斷的場合,閥與執行機構的連接采用直連方式,電動執行機構無須配伺服放大器,輸入220VAC電源即可控制運轉。電動切斷球閥廣泛應用于化工、石油、制藥、輕工等行業的自動控制。采用智能控制與定位,與電氣閥門定位器配套,輸入4~20mADC信號及0.4~0.7MPa氣源即可控制運轉,實現對壓力、流量、溫度、液位等參數的調節。氣動切斷球閥、氣動O型切斷球閥是以壓縮空氣為動力,閥桿帶動閥芯在閥體內轉動90°可以實現全開—全閉的動作。按其密封性能分為金屬密封與軟密封。具有結構緊湊、體積精小、運行可靠、密封性好、維修容易、安裝方便、適應性強等優點。特別適合于介質是粘稠、含顆粒、纖維性質的場合。氣動調節球閥廣泛應用于石油、化工、教學設備、輕工、高壓設備、制藥、造紙等工業自動控制系統中,作遠距離集中控制或就地控制。
產品名稱: | 氣動,電動O型切斷球閥 | 產品型號: | Q941F,Q641F |
公稱通徑: | DN15~DN200 | 結構形式: | 球形 |
公稱壓力: | 1.6Mpa~2.5Mpa | 連接方式: | 法蘭、對夾、螺紋、焊接 |
適用溫度: | ≤350ºC | 驅動方式: | 電動,氣動(可佩帶手操) |
閥體材質: | 鑄鋼、不銹鋼 | 制造標準: | 國標GB、德國DIN、美國API、ANSI |
適用介質: | 水、油、氣體、液體 | 生產廠家: | 浙江嵐勝閥門有限公司 |
設計規范
設計與制造 | GB12237-89、API608、API 6D、JPI 7S-48、BS5351、DIN3357 |
法蘭尺寸 | JB/T74~90(JB74~90)、GB9112~9131、HGJ44~76、SH3406、ANSI B16.5、JIS B2212~2214 |
結構長度 | GB12221-89、ANSI B16.10、JIS B2002、NF E29-305、DIN3202 |
檢驗與試驗 | JB/T9113.1、API 598 |
(1)流體阻力小、球閥是所有閥類中流體阻力較小的一種,即使是縮徑球閥,其流體阻力也相當小。
(2)止推軸承減小閥桿摩擦力矩,可使閥桿長期操作平衡靈活。
(3)閥座密封性能好,采用聚四氟乙烯等材料制成的密封圈,結構易于密封,而且球閥的閥封能力隨著介質壓力的增設而增大。
(4)閥桿密封可靠,由于閥桿只作旋轉運動而不做升降運動,閥桿的填料密封不易破壞,且密封能力隨著介質的壓力增設而增大。
(5)由于聚四氟乙烯等材料具有良好的自潤滑性,與球體的摩擦損失小,幫球閥的使用壽命長。
(6)下裝式閥桿和閥桿頭部凸階防止閥桿噴出,如火災造成閥桿密封破壞,凸階與閥體間還可形成金屬接觸,確保閥桿密封。
公稱通徑DN(mm) | 15 | 20 | 25 | 32 | 40 | 50 | 65 | 80 | 100 | 125 | 150 | 200 |
額定流量系數KV | 21 | 38 | 72 | 112 | 170 | 273 | 384 | 512 | 940 | 1452 | 2222 | 3589 |
公稱壓力(MPa) | PN1.6、2.5、4.0、6.4 MPa;ANSI 150、300LB | |||||||||||
允許壓差(MPa) | ≤公稱壓力 | |||||||||||
閥體形式 | 兩段式鑄造球閥 | |||||||||||
連接形式 | 法蘭式、焊接式、螺紋式 | |||||||||||
閥芯形式 | "O"型球形閥芯 | |||||||||||
密封填料 | V型聚四氟乙烯填料、柔性石墨填料等 | |||||||||||
流量特性 | 近似快開型 | |||||||||||
動作范圍 | 0~90° | |||||||||||
泄露量Q | 按GB/T4213-92,小于額定KV0.01% | |||||||||||
基本誤差 | ±1% | |||||||||||
回差 | ±1% | |||||||||||
死區 | ≤1%(可調) | |||||||||||
可調范圍 | 250:1 | 350:1 | ||||||||||
配置執行機構 | 可配PSQ、HQ、UNIC、361RS、JO等系列角行程電動執行機構 | |||||||||||
控制方式 | 開關到位燈(開關兩位控制)、無源觸點信號、1/5K電位計、智能調節(4~20mA模擬量信號控制) | |||||||||||
執行器技術參數
執行器型號 | GT、SR、ST、AT、AW系列單雙作用氣動執行器 |
供氣壓力 | 0.4~0.7MPa |
氣源接口 | G1/4"、G1/8"、G3/8"、G1/2" |
環境溫度 | -30~+70℃ |
作用形式 | 單作用執行機構:氣關式(B)--失氣時閥位開(FO);氣開式(K)--失氣時閥位關(FC) |
可配附件 | 定位器、電磁閥、空氣過濾減壓器、保位閥、行程開關、閥位傳送器、手輪機構等 |
執行器類別 | 引進型JOX系列執行器參數 | 引進型3610R系列執行器參數 | 引進型JHQ系列執行器參數 |
電源電壓 | 標準:220V AC單相 可選:110V AC 單相、380/440V AC 三相、24V/110V/220V AC | ||
輸出力矩 | 50N·M~2000N·M | 50N·M~1500N·M | 50N·M~3000N·M |
動作范圍 | 0~90° 0~360° | 0~90° | 0~90°、0°~270°可選 |
控制方式 | 開關到位燈(開關兩位控制)、無源觸點信號、1/5K電位計、智能調節(4~20mA模擬量信號控制) | ||
動作時間 | 15秒/30秒/60秒 | 10秒/15秒/30秒 | 18S~112S |
保護裝置 | 過熱保護 | 過載保護 | 內置過熱保護、過載保護 |
環境溫度 | -30°~60° | -30°~60° | -20℃~+70℃ |
手動操作 | 同附帶手柄操作 | 同附帶手柄操作 | 機械離合機構,配手輪操作 |
機械限位 | 電氣、機械二重限位 | 電氣、機械二重限位 | 2個外部調整螺栓 |
防護等級 | IP65 | IP55 | IP65、IP67、可定制IP68 |
防爆等級 | 無防爆 | ExdⅡ BT4 | ExdⅡ BT4,ExdⅡ CT6 |
位置測量 | 可選裝開關或電位計 | 比例控制單元 | 電位計、比例控制單元 |
驅動電機 | 8W/E | AC可逆電機 | 鼠籠式異步電機 |
進線接口 | PE1/2〞進線線鎖 | 2-PF 1/2〞進線線鎖 | 2個 PF 3/4” |
殼體材料 | 鋁合金 | 鋼,鋁合金 | 鋼,鋁合金,鋁青銅,聚碳酸脂 |
外涂層 | 干粉,環氧聚酯,具有超強防腐功能 | ||
采用獨特的電制動線路,因而定位精度高,執行機構靈敏,啟動停止迅速,運行平穩。同時具有抗干擾、抗浪涌電壓、防擊穿能力強的特點 | |||
適用于動作頻繁的調節回路,當接通持續率為25%時,每小時動作次數可達630-1200次 | |||
零件名稱 | 材料 | |||
閥體、閥蓋 | WCB | 304(CF8) | 316(CF8M) | 316L(CF3M) |
球體 | 2Cr13+氮化處理 | 304 | 316 | 316L |
閥桿 | 2Cr13 | 304 | 316 | 316L |
閥座密封圈 | PTFE、碳素纖維+PTFE、對位聚苯 | |||
填料 | V型PTFE、柔性石墨 | |||
公稱通徑DN(mm) | DN15-300 | |||||
公稱壓力 | PN(MPa) | 1.0 | 1.6 | 2.5 | 4.0 | 6.4 |
試驗壓力 | 強度試驗 | 1.5 | 2.4 | 3.75 | 6.0 | 9.60 |
密封試驗 | 1.1 | 1.76 | 2.75 | 4.4 | 7.04 | |
低壓氣密試驗 | 0.5~0.7 | |||||
適用介質 | 水、油、蒸氣、硝酸類(溫度≤200℃)、醋酸類(溫度≤200℃) | |||||

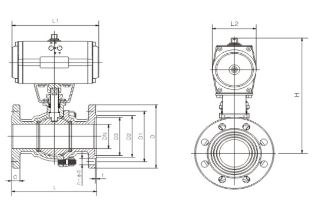
公稱通徑 DN(mm) | 15 | 20 | 25 | 32 | 40 | 50 | 65 | 80 | 100 | 125 | 150 | 200 | 250 | 300 | |
L | 130 | 140 | 150 | 165 | 180 | 200 | 220 | 250 | 280 | 320 | 360 | 400 | 630 | 750 | |
H、A | 由于閥門密封選擇及溫度選擇不同,執行器尺寸需根據實際配置,該尺寸可咨詢嵐勝閥門有限公司技術部。 | ||||||||||||||
A1 | 防爆型 | 137 | 137 | 137 | 137 | 137 | 137 | 137 | 137 | 137 | 137 | 137 | 137 | 137 | 137 |
標準型 | 40 | 40 | 40 | 40 | 40 | 40 | 40 | 40 | 40 | 40 | 40 | 40 | 40 | 40 | |
PN1.6MPa法蘭連接尺寸 | |||||||||||||||
D | 95 | 105 | 115 | 140 | 150 | 165 | 185 | 200 | 220 | 250 | 285 | 340 | 405 | 460 | |
D1 | 65 | 75 | 85 | 100 | 110 | 125 | 145 | 160 | 180 | 210 | 240 | 295 | 355 | 410 | |
D2 | 46 | 56 | 65 | 76 | 84 | 99 | 118 | 132 | 156 | 184 | 211 | 266 | 319 | 370 | |
b | 14 | 16 | 16 | 18 | 18 | 20 | 22 | 24 | 24 | 26 | 28 | 24 | 26 | 28 | |
f | 2 | 2 | 2 | 2 | 2 | 2 | 2 | 2 | 2 | 2 | 2 | 2 | 2 | 2 | |
n-φd | 4-14 | 4-14 | 4-14 | 4-18 | 4-18 | 4-18 | 4-18 | 8-18 | 8-18 | 8-18 | 8-22 | 12-22 | 12-26 | 12-26 | |
PN2.5MPa法蘭連接尺寸 | |||||||||||||||
D | 95 | 105 | 115 | 140 | 150 | 165 | 185 | 200 | 235 | 270 | 300 | 360 | 425 | 485 | |
D1 | 65 | 75 | 85 | 100 | 110 | 125 | 145 | 160 | 190 | 220 | 250 | 310 | 370 | 430 | |
D2 | 46 | 56 | 65 | 76 | 84 | 99 | 118 | 132 | 156 | 184 | 211 | 274 | 330 | 389 | |
b | 14 | 16 | 16 | 18 | 18 | 20 | 22 | 24 | 24 | 26 | 28 | 34 | 38 | 42 | |
f | 2 | 2 | 2 | 2 | 2 | 2 | 2 | 2 | 2 | 2 | 2 | 2 | 2 | 2 | |
n-φd | 4-14 | 4-14 | 4-14 | 4-18 | 4-18 | 4-18 | 8-18 | 8-18 | 8-22 | 8-26 | 8-26 | 12-26 | 12-30 | 16-30 | |

公稱通徑DN(mm) | 主要尺寸 | 法蘭尺寸 | ||||||||||
PN1.6MPa | PN2.5MPa | |||||||||||
L | H | H1 | L1 | D | D1 | D2 | n-φd | D | D1 | D2 | n-φd | |
15 | 130 | 185 | / | 140 | 95 | 65 | 46 | 4-14 | 95 | 65 | 46 | 4-14 |
20 | 140 | 191 | / | 140 | 105 | 75 | 45 | 4-14 | 105 | 75 | 56 | 4-14 |
25 | 150 | 193 | / | 140 | 115 | 85 | 65 | 4-14 | 115 | 85 | 65 | 4-14 |
32 | 165 | 212 | / | 164 | 140 | 100 | 76 | 4-18 | 140 | 100 | 76 | 4-18 |
40 | 180 | 217 | / | 164 | 150 | 110 | 84 | 4-18 | 150 | 110 | 84 | 4-18 |
50 | 200 | 260 | 102 | 190 | 165 | 125 | 99 | 4-18 | 165 | 125 | 99 | 4-18 |
65 | 220 | 293 | 114 | 210 | 185 | 145 | 118 | 4-18 | 185 | 145 | 118 | 8-18 |
80 | 250 | 323 | 127 | 247 | 200 | 160 | 132 | 8-18 | 200 | 160 | 132 | 8-18 |
100 | 280 | 382 | 152 | 276 | 220 | 180 | 156 | 8-18 | 235 | 190 | 156 | 8-22 |
125 | 320 | 468 | 184 | 348 | 250 | 210 | 184 | 8-18 | 270 | 220 | 184 | 8-26 |
150 | 360 | 510 | 219 | 378 | 285 | 240 | 211 | 8-22 | 300 | 250 | 211 | 8-26 |
200 | 400 | 655 | 273 | 524 | 340 | 295 | 266 | 12-22 | 360 | 310 | 274 | 12-26 |
250 | 630 | / | 360 | / | 405 | 355 | 319 | 12-26 | 425 | 370 | 330 | 12-30 |
300 | 750 | / | 395 | / | 460 | 410 | 370 | 12-26 | 485 | 430 | 389 | 16-30 |