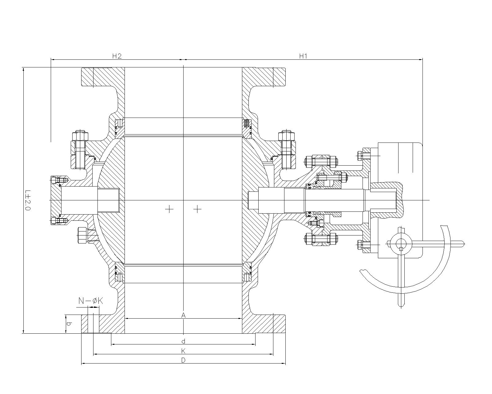
Q347Y金屬硬密封球閥是一種高性能閥門,適用于長輸管線和一般工業管線,其強度、安全性、耐惡劣環境性等在設計時進行了特殊考慮,適合于高溫高壓的水、蒸汽、石油、煤炭、纖維、稠性和腐蝕性介質,以及帶顆粒的介質。其中抗硫系列產品適用于含硫化氫介質、雜質多、腐蝕嚴重的天然氣長輸管線。手動鑄鋼硬密封球閥體表面采用噴涂技術,通過對各種不同工況條件的處理,硬度可達HRC78。閥座密封面的處理, 硬度可達HRC72。球體和閥座進行配對研磨,球閥整個密封面的所有密封區域均經過精密研磨。固定球閥與浮動球閥相比,工作時,閥前流體壓力在球體上產生的作用力全部傳遞給軸承,不會使球體向閥座移動,因而閥座不會承受過大的壓力,所以固定式法蘭球閥的轉矩小、閥座變形小,密封性能穩定、使用壽命長,適用于高壓、大口徑場合。彈簧預閥座組件,具有自緊特性,實現上游密封。每閥有兩個閥座,每個方向都能密封,因而安裝沒有流向限制,是雙向。
手動固定球閥有二段式和三段式兩種閥體結構,中法蘭用螺栓連接,密封采用堆焊硬質合金,鋼圈后部設有彈簧保證閥座緊貼球體,保持密封。上下閥桿均設有PTFE軸承,減少磨擦,操作省力,小軸底部設有調整片,保證球與密封圈的接處位置。全通徑:閥門流量孔徑與管線內徑一致,以便管線清掃。
產品名稱: | 金屬硬密封球閥 | 產品型號: | Q347Y |
公稱通徑: | DN150~DN1200 | 結構形式: | 固定式 |
公稱壓力: | 1.6Mpa~6.4Mpa~16.0Mpa~42.0Mpa | 連接方式: | 法蘭 |
適用溫度: | ≤550ºC | 驅動方式: | 手動、蝸輪、電動 |
閥體材質: | 鑄鋼、碳鋼、鍛鋼、不銹鋼 | 制造標準: | GB/T21385-2008 |
適用介質: | 水、油、氣體、液體 | 生產廠家: | 浙江嵐勝閥門有限公司 |
選用WCB、CF8、CF3、CF8M、CF3M、ZG1Cr18Ni9Ti、ZG1Cr18Ni12Mo2Ti等,可分別適用于非腐蝕型介質、弱腐蝕性介質、硝酸、醋酸、氧化性介質、尿素等多種介質,特別適用于含固體顆粒介質、料漿、煤粉、灰渣等苛刻工況。
1. 高溫耐受性:Q347Y球閥設計用于在高溫環境下工作,碳鋼材質的工作溫度范圍可達-29℃至425℃,而不銹鋼材質則可承受-40℃至550℃的溫度。
2. 耐磨損:球體和閥座經過特殊硬化處理,增強了耐磨損性能,適用于含有固體顆粒的介質。
3. 防火和防靜電:金屬硬密封結構有助于防止火災和靜電積聚,適用于易燃易爆介質。
4. 流體阻力。喝◤皆O計減少了流體流動過程中的阻力,提高了流體的流速和效率。
5. 結構緊湊:設計簡潔,體積小,便于安裝在空間受限的環境中。
6. 重量輕:相比其他類型的閥門,Q347Y球閥重量較輕,便于搬運和安裝。
7. 密封性能好:金屬硬密封確保了閥門在關閉狀態下的密封性,適用于需要嚴格密封的場合。
8. 操作簡便:90度旋轉即可實現閥門的開啟或關閉,易于操作。
9. 維護方便:閥門設計允許快速訪問和更換密封件和其他部件,簡化了維護過程。
10. 雙向密封功能:Q347Y球閥設計為雙向密封,無論介質流向如何,都能保持良好的密封性能。
11. 多種材質選擇:根據不同的介質和工況要求,可以選擇鑄鐵、鑄鋼、鍛鋼、不銹鋼等多種材質。
12. 多種連接方式:支持法蘭連接和焊接連接,適應不同的管道系統。
13. 多種驅動方式:提供手動、蝸輪蝸桿傳動、氣動、電動等多種驅動方式,以滿足不同操作需求。
14. 適用于多種介質:可以用于水、蒸汽、油品、硝酸、醋酸、氧化性介質、尿素等多種介質的輸送和控制。
15.操作省力:球體由上下軸承支撐,減少摩擦,消除了由于進口壓力推動球體與密封座形成的巨大密封負荷而造成過大的扭矩。
16.自動泄壓功能:當閥門中腔停滯的介質壓力異常升高超過彈簧的預緊力時,閥座后退脫離球體,達到自動泄壓的效果,卸壓后閥座自動復位。
17.排泄管路:閥體上下均設置排泄孔,可檢查閥座是否發生泄漏,在工作中,閥門處于全開或全關時,卸掉中腔壓力;可以排放中腔滯留物,減少介質對閥門的污染。
18.本閥門設計有輔助的閥座緊急密封系統,一旦密封受損或出現緊急情況而不能密封時,通過輔助密封系統向密封面注射相應的密封劑即可修復密封面,達到緊急密封。當輸送的介質不潔或含有少量顆粒時,為保護密封面,確保達到可靠的密封,還可給這一裝置注射相應的清洗劑或潤滑劑對密封面進行清洗。
閥體 | 304 | ZG1Cr18Ni9Ti | CF8 | CF3 | ZG1Cr18Ni12Mo2Ti | CF8M | CF3M |
Body | |||||||
球體閥桿 | 304 | 1Cr18Ni9Ti | 304 | 304L | 1Cr18Ni12Mo2Ti | 316 | 316L |
Ball Stem | |||||||
閥座 | -29℃~300℃(對位聚笨 PPL) | ||||||
Seat | -29℃~550℃(金屬) | ||||||
墊片 | 不銹鋼/柔性石墨Stainless Steel/flexible Graphite 齒形墊片Tooth Profile Gasket | ||||||
Shim | |||||||
閥桿座 | 不銹鋼/柔性石墨 Stainless Steel/Flexible Graphite | ||||||
Stem Seat | |||||||
填料 | 增強柔性石墨 Enhanced Flexible Graphite | ||||||
Packing | |||||||
填料壓蓋 | 1Cr18Ni9Ti | 304 | 304L | 1Cr18Ni12Mo2Ti | 316 | 316L | |
Gland | |||||||
溫度 | -29℃~300℃(對位聚笨 PPL) | ||||||
Temperature | -29℃~550℃(金屬硬密封) | ||||||
介質 | 水蒸汽油品氣體 | 硝酸類 Nitric Acid | 強氧化介質 | 醋酸類 Acetic Acid | 尿素類Urea | ||
Medium | Water steam | strongey oxidable medium | |||||
Oil goods | |||||||

1.6MPa | DN | L | A | D | k | d | b | t | N-φk | H1 | H2 |
Q347Y Q347PPL 16C 16P 16R | 150 | 394 | 150 | 285 | 240 | 212 | 22 | 2 | 8-φ22 | 470 | 540 |
200 | 457 | 200 | 340 | 295 | 268 | 24 | 2 | 12-φ22 | 520 | 580 | |
250 | 533 | 250 | 405 | 355 | 320 | 26 | 2 | 12-φ26 | 610 | 640 | |
300 | 610 | 300 | 460 | 410 | 378 | 28 | 2 | 12-φ26 | 650 | 690 | |
350 | 686 | 337 | 520 | 470 | 428 | 30 | 2 | 16-φ26 | 740 | 785 | |
400 | 762 | 387 | 580 | 525 | 490 | 32 | 2 | 16-φ30 | 795 | 830 | |
450 | 864 | 436 | 640 | 585 | 550 | 40 | 2 | 20-φ30 | 860 | 910 | |
500 | 914 | 489 | 715 | 650 | 610 | 44 | 2 | 20-φ33 | 945 | 990 | |
600 | 1067 | 591 | 840 | 770 | 725 | 54 | 2 | 20-φ36 | 1040 | 1090 | |
700 | 1245 | 686 | 910 | 840 | 795 | 42 | 2 | 24-φ36 | 1150 | 1210 | |
800 | 1372 | 781 | 1025 | 950 | 900 | 42 | 2 | 24-φ39 | 1280 | 1340 | |
900 | 1524 | 876 | 1125 | 1050 | 1000 | 44 | 2 | 28-φ39 | 1430 | 1510 | |
1000 | 1753 | 978 | 1255 | 1170 | 1115 | 46 | 2 | 28-φ42 | 1580 | 1640 | |
1200 | 2032 | 1166 | 1585 | 1390 | 1330 | 52 | 2 | 36-φ48 | 1810 | 1910 |
2.5MPa | DN | L | A | D | k | d | b | t | N-φk | H1 | H2 |
Q347Y Q347PPL 25C 25P 25R | 150 | 403 | 150 | 300 | 250 | 218 | 28 | 2 | 8-φ26 | 470 | 540 |
200 | 502 | 200 | 360 | 310 | 278 | 30 | 2 | 12-φ26 | 520 | 580 | |
250 | 568 | 250 | 425 | 370 | 335 | 32 | 2 | 12-φ30 | 610 | 640 | |
300 | 648 | 300 | 485 | 430 | 395 | 34 | 2 | 16-φ30 | 650 | 690 | |
350 | 762 | 337 | 555 | 490 | 450 | 38 | 2 | 16-φ33 | 740 | 785 | |
400 | 838 | 387 | 620 | 550 | 505 | 40 | 2 | 16-φ36 | 795 | 830 | |
450 | 914 | 436 | 670 | 600 | 555 | 46 | 2 | 20-φ36 | 860 | 910 | |
500 | 991 | 489 | 730 | 660 | 615 | 48 | 2 | 20-φ36 | 945 | 990 | |
600 | 1143 | 591 | 845 | 770 | 720 | 58 | 2 | 20-φ39 | 1040 | 1090 | |
700 | 1346 | 686 | 960 | 875 | 820 | 50 | 2 | 24-φ42 | 1150 | 1210 | |
800 | 1524 | 781 | 1085 | 990 | 930 | 54 | 2 | 24-φ48 | 1280 | 1340 | |
900 | 1727 | 876 | 1185 | 1090 | 1030 | 58 | 2 | 28-φ48 | 1430 | 1510 | |
1000 | 1880 | 978 | 1320 | 1210 | 1140 | 62 | 2 | 32-φ55 | 1580 | 1640 | |
1200 | 2184 | 1166 | 1530 | 1420 | 1350 | 70 | 2 | 36-φ55 | 1810 | 1910 |
4.0MPa | DN | L | A | D | k | d | b | t | n-φk | H1 | H2 |
Q41H Q41PPL 40C 40P 40R | 150 | 403 | 150 | 300 | 250 | 218 | 28 | 2 | 8-926 | 470 | 540 |
200 | 502 | 200 | 375 | 320 | 285 | 34 | 2 | 12-φ30 | 520 | 580 | |
250 | 568 | 250 | 450 | 385 | 345 | 38 | 2 | 12-φ33 | 610 | 640 | |
300 | 648 | 300 | 515 | 450 | 410 | 42 | 2 | 16-φ33 | 650 | 690 | |
350 | 762 | 337 | 580 | 510 | 465 | 46 | 2 | 16-036 | 740 | 785 | |
400 | 838 | 387 | 660 | 585 | 535 | 50 | 2 | 16-φ39 | 795 | 830 | |
450 | 914 | 436 | 685 | 610 | 560 | 57 | 2 | 20-39 | 860 | 910 | |
500 | 991 | 489 | 755 | 670 | 615 | 57 | 2 | 20-φ42 | 945 | 990 | |
600 | 1143 | 591 | 890 | 795 | 735 | 72 | 2 | 20-φ48 | 1040 | 1090 | |
700 | 1136 | 686 | 995 | 900 | 835 | 68 | 2 | 24-φ54 | 1150 | 1210 | |
800 | 1524 | 781 | 1135 | 1030 | 960 | 76 | 2 | 24-φ58 | 1280 | 1340 | |
900 | 1727 | 876 | 1270 | 1168 | 1022 | 105 | 2 | 32-φ54 | 1430 | 1510 | |
1000 | 1880 | 978 | 1238 | 1156 | 1086 | 114 | 2 | 32-φ44 | 1580 | 1640 | |
1200 | 2184 | 1166 | 1467 | 1372 | 1302 | 133 | 2 | 32-φ51 | 1810 | 1910 |