H42F46襯氟立式止回閥適用在-50℃~150℃的各種濃度的王水、硫酸、鹽酸、氫氟酸和各種有機酸、強酸、強氧化劑,FEP還適用于各種濃度的強堿有機溶劑以及其它腐蝕性氣體、液體介質的管路上使用。其主要作用是防止介質倒流。
產品名稱: | 襯氟立式止回閥 | 產品型號: | H42F46 |
公稱通徑: | DN15~DN500 | 結構形式: | 升降式、立式 |
公稱壓力: | 0.6MPa~1.0MPa~1.6MPa | 連接方式: | 法蘭 |
適用溫度: | -50ºC~+150ºC | 驅動方式: | 介質推動 |
連接材質: | 鑄鐵、鑄鋼、不銹鋼 | 標準: | 國標GB、德國DIN、美國API、ANSI |
適用介質: | 王水、硫酸、鹽酸、氫氟酸等 | 生產廠家: | 浙江嵐勝閥門有限公司 |
設計制造標準:GB/T 12224
結構長度標準:GB/T 12221-2005
連接法蘭標準:GB/T 9113、HG20592-97
壓力溫度等級:GB/T 12224-2005
試驗檢驗標準:GB/T 13927-2008
序號 | 零件名稱 | 灰鑄鐵 | 鑄鋼 | 不銹耐酸鑄鋼 | 超低碳不銹耐酸鑄鋼 | ||
Z | C | P | R | PL | RL | ||
1 | 閥體/閥蓋 | HT250 | WCB | CF8 | CF8M | CF3 | CF3M |
2 | 閥瓣/閥桿 | 35 | 1Cr13 | 1Cr18Ni9 | 1Cr18Ni12Mo2Ti | 00Cr18Ni10 | 00Cr17Ni14Mo2 |
3 | 襯里/閥座 | PTEF(F3)、FEP(F46)、PFA(可溶F4)、PP、PO | |||||
4 | 緊固螺栓 | WCB | 1Cr17Ni2 | 1Cr18Ni9Ti | |||
5 | 螺母 | WCB | 1Cr17Ni2 | 1Cr18Ni9Ti | |||

公稱通徑 | 標準值 | 參考值 | |||||||
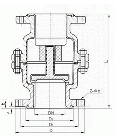
DN (mm) | NPS (inch) | L | D | D1 | D2 | f | b | Z-Φd | WT(Kg) |
PN0.6MPa | |||||||||
15 | 1/2 | 80 | 80 | 55 | 40 | 2 | 12 | 4-Φ14 | 2.5 |
20 | 3/4 | 90 | 90 | 65 | 50 | 2 | 14 | 4-Φ14 | 3.5 |
25 | 1 | 100 | 100 | 75 | 60 | 2 | 14 | 4-Φ14 | 4 |
32 | 1-1/4 | 110 | 120 | 90 | 70 | 2 | 16 | 4-Φ18 | 5 |
40 | 1-1/2 | 125 | 130 | 100 | 80 | 3 | 16 | 4-Φ18 | 6 |
50 | 2 | 140 | 140 | 110 | 90 | 3 | 16 | 4-Φ18 | 8 |
65 | 2-1/2 | 160 | 160 | 130 | 110 | 3 | 16 | 4-Φ18 | 10 |
80 | 3 | 185 | 185 | 150 | 125 | 3 | 18 | 8-Φ18 | 13 |
100 | 4 | 210 | 205 | 170 | 145 | 3 | 18 | 8-Φ18 | 25 |
150 | 6 | 300 | 260 | 225 | 200 | 3 | 20 | 8-Φ23 | 46 |
200 | 8 | 380 | 315 | 280 | 255 | 3 | 22 | 12-Φ23 | 100 |
250 | 10 | 356 | 370 | 335 | 310 | 3 | 24 | 12-Φ23 | 155 |
300 | 12 | 457 | 435 | 395 | 362 | 4 | 24 | 12-Φ23 | 180 |
350 | 14 | 533 | 485 | 445 | 412 | 4 | 26 | 16-Φ23 | 220 |
400 | 16 | 572 | 535 | 495 | 462 | 4 | 28 | 16-Φ23 | 275 |
450 | 18 | 610 | 590 | 550 | 518 | 4 | 28 | 16-Φ23 | 300 |
500 | 20 | 610 | 640 | 600 | 568 | 4 | 30 | 16-Φ23 | 392 |
公稱通徑 | 標準值 | 參考值 | |||||||
DN (mm) | NPS (inch) | L | D | D1 | D2 | f | b | Z-Φd | WT(Kg) |
PN1.0MPa | |||||||||
15 | 1/2 | 80 | 95 | 65 | 45 | 2 | 14 | 4-Ф14 | 2.5 |
20 | 3/4 | 90 | 105 | 75 | 55 | 2 | 16 | 4-Ф14 | 3.5 |
25 | 1 | 100 | 115 | 85 | 65 | 2 | 16 | 4-Ф14 | 4 |
32 | 1-1/4 | 110 | 135 | 100 | 78 | 2 | 18 | 4-Ф18 | 5 |
40 | 1-1/2 | 125 | 145 | 110 | 85 | 3 | 18 | 4-Ф18 | 6 |
50 | 2 | 140 | 160 | 125 | 100 | 3 | 20 | 4-Ф18 | 8 |
65 | 2-1/2 | 160 | 180 | 145 | 120 | 3 | 20 | 4-Ф18 | 10 |
80 | 3 | 185 | 195 | 160 | 135 | 3 | 22 | 4-Ф18 | 13 |
100 | 4 | 210 | 215 | 180 | 155 | 3 | 22 | 8-Ф18 | 25 |
150 | 6 | 300 | 280 | 240 | 210 | 3 | 24 | 8-Ф23 | 46 |
200 | 8 | 380 | 335 | 295 | 265 | 3 | 26 | 8-Ф23 | 100 |
250 | 10 | 356 | 390 | 350 | 320 | 3 | 28 | 12-Ф23 | 155 |
300 | 12 | 457 | 440 | 400 | 368 | 4 | 28 | 12-Ф23 | 180 |
350 | 14 | 533 | 500 | 460 | 428 | 4 | 30 | 16-Ф23 | 220 |
400 | 16 | 572 | 565 | 515 | 482 | 4 | 32 | 16-Ф25 | 275 |
450 | 18 | 610 | 615 | 565 | 532 | 4 | 32 | 20-Ф25 | 300 |
500 | 20 | 610 | 670 | 620 | 585 | 4 | 34 | 20-Ф25 | 392 |
公稱通徑 | 標準值 | 參考值 | |||||||
DN (mm) | NPS (inch) | L | D | D1 | D2 | f | b | Z-Φd | WT(Kg) |
PN1.6MPa | |||||||||
15 | 1/2 | 80 | 95 | 65 | 45 | 2 | 14 | 4-Ф14 | 2.5 |
20 | 3/4 | 90 | 105 | 75 | 55 | 2 | 16 | 4-Ф14 | 3.5 |
25 | 1 | 100 | 115 | 85 | 65 | 2 | 16 | 4-Ф14 | 4 |
32 | 1-1/4 | 110 | 135 | 100 | 78 | 2 | 18 | 4-Ф18 | 5 |
40 | 1-1/2 | 125 | 145 | 110 | 85 | 3 | 18 | 4-Ф18 | 6 |
50 | 2 | 140 | 160 | 125 | 100 | 3 | 20 | 4-Ф18 | 8 |
65 | 2-1/2 | 160 | 180 | 145 | 120 | 3 | 20 | 4-Ф18 | 10 |
80 | 3 | 185 | 195 | 160 | 135 | 3 | 22 | 8-Ф18 | 13.5 |
100 | 4 | 210 | 215 | 180 | 155 | 3 | 24 | 8-Ф18 | 28.5 |
150 | 6 | 300 | 280 | 240 | 210 | 3 | 28 | 8-Ф23 | 48 |
200 | 8 | 380 | 335 | 295 | 265 | 3 | 30 | 12-Ф23 | 105 |
250 | 10 | 356 | 405 | 355 | 320 | 3 | 32 | 12-Ф25 | 165 |
300 | 12 | 457 | 460 | 410 | 375 | 4 | 34 | 12-Ф25 | 195 |
350 | 14 | 533 | 520 | 470 | 435 | 4 | 38 | 16-Ф25 | 238 |
400 | 16 | 572 | 580 | 525 | 485 | 4 | 40 | 16-Ф30 | 295 |